The Woodland
Model Details
2,405 square feet
1,485 sq ft first floor
Unfinished second floor 920 sq ft
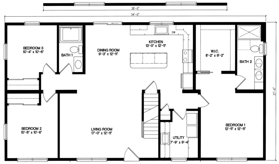
The Woodland is one of the most customizable modular homes we have ever built, where the possibilities are endless. As shown, we have 3 dormers (including a very spacious shed dormer in the rear) allowing for 920 additional square feet of living space. The kitchen has been thoughtfully laid out with plenty of storage space and we feature a utility room in the front of the home, easily allowing for garage access if building a garage as well.
Versatile Master Suite
The master can easily be flipped if garage is added
Chef’s Dream
The kitchen was laid out in a way for the home chef’s to cook to their heart’s content
The Benefits of Modular Home Design
The Woodland is the most versatile plan we have ever built for a model at Shorten Homes. There are 4 standard plan variations to choose from, whether as a ranch or cape, with a garage attached or without. The dormers we feature in the second story allow for a very customizable footprint to design your additional living space to your exact needs. The Woodland features many popular requested features in its kitchen, including an oversized kitchen island with roll out trays, ample drawer cabinets for pots and pans and an oversized kitchen window allowing for ample natural light. The walk in closet is massive, and allows for plenty of room to customize your wardrobe layout. The Woodland is packed with some of the most popular features across our entire display model line, and we’ve managed to fit them all in with affordability, versatility, and comfort in mind.
The standalone master suite on the right side of this home allows for privacy and seclusion from the other bedrooms and common areas and the utility room in particular is designed for the ever-growing family in mind.
- The Woodland offers 2,405 square feet of well-planned living space, making it both efficient and comfortable.
- It includes three bedrooms and two full bathrooms, providing the perfect layout for families or those needing extra space.
- Can also be built as a single story ranch.
(Bullet) We feature a total of 3 separate dormers on this model, maximizing space upstairs for a completely customizable second floor. - The kitchen and dining room are positioned for convenience, making mealtime and gatherings easy and enjoyable.
- A private master suite with its own full bathroom ensures comfort and privacy.
- The laundry/utility room has exterior access, allowing for a seamless connection to an attached garage.
We really like the additional unit you feature on the Stoneybrook II model. Is that able to be added to the Woodland?
Yes! In fact, you can add this particular additional unit, or any other customized unit to any of our homes, including the Woodland.
We plan on finishing our basement, so the openness of the basement stairwell is preferred, like shown on this plan. Can we do this on any plan?
Yes!
Am I able to add more than 2 dormers on the front?
Yes, you can! We can add up to 4 cape dormers in front, as well as a variety of other dormer styles too!



